Repräsentative Höhenlage mit unverbaubarer Aussicht.

Adresse: Höhenweg 7, 31737 Rinteln-Schaumburg


Objektdaten

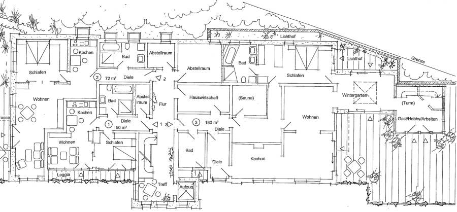
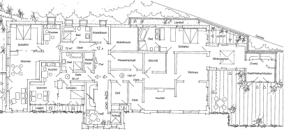
  • Wohnfläche: ca. 600 m²
  • Grundstück: ca. 2.800–3.000 m²
  • Gartenflächen: großzügig angelegt
  • Eigene Wohnung: 130 m² + Penthouse 100 m²
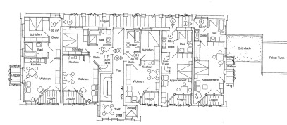
  • Weitere Flächen: 11 Zimmer + DU/WC
  • Außenflächen: 3 Balkone, 250 m² Sonnenterrasse + Sauna-Terrasse mit Grillplatz
  • Parkplätze: 10 PKW-Stellplätze
  • Erweiterung: Gebäude kann aufgestockt und flächenmäßig vergrößert werden

Objektbeschreibung

Diese außergewöhnliche Villa in exponierter Höhenlage am Hochwald direkt neben der Schaumburg bietet eine atemberaubende, unverbaubare Fernsicht über das Weserbergland.

Das Anwesen vereint Luxus, Großzügigkeit und flexible Nutzungsmöglichkeiten. Mit ca. 600 m² Wohnfläche auf einem weitläufigen Grundstück von bis zu 3.000 m² ist es sowohl als private Residenz wie auch für repräsentative oder gewerbliche Zwecke ideal geeignet.

Eine Umwandlung in mehrere hochwertige Eigentumswohnungen ist realisierbar.


Nutzungsmöglichkeiten

  • Private Luxusresidenz mit exklusivem Penthouse, großen Garten- und Terrassenflächen
  • Hotelbetrieb (derzeitige Nutzung, 19 Betten) mit nachweislich hoher Auslastung und attraktivem Renditepotenzial
  • Firmenrepräsentanz mit Büroräumen, Tagungs- und Seminarmöglichkeiten in repräsentativer Lage
  • Klinik, Kur- oder Kinderheim – bestens geeignet durch die großzügige Raumaufteilung und ruhige Höhenlage
  • Projektentwicklung: Erweiterung und Aufstockung des Gebäudes, oder Umwandlung in mehrere Eigentumswohnungen, möglich.

Ausstattung & Highlights

  • Luxuriös ausgestattete Hauptwohnung + Penthouse (gesamt ca. 230 m²)
  • 11 weitere vielseitig nutzbare Räume (aktuell Hotelbetrieb), 7 x DU/WC
  • Großzügige Sonnenterrasse (250 m²) und eine weitere Terrasse mit Grillplatz + Sauna
  • 3 Balkone mit unverbaubarem Panoramablick
  • 10 PKW-Stellplätze, 4 Carports
  • Umfassende Renovierung in 2022 – hochwertige Ausstattung, sofort nutzbar

Besonders hervorzuheben ist das Penthouse (ca. 100 m²), das höchsten Wohnkomfort und eine spektakuläre Aussicht garantiert.


Kontakt

Für weitere Informationen und Terminabsprache zur Besichtigung:

Volker Hartmann
0177 – 375 00 25
vh@villa-schaumburg.de

 

IDEEN

Druckversion | Sitemap
© Volker Hartmann Adrian-Management GmbH